12 Eigentumswohnungen in Nürensdorf
Das Projekt
«i de Breiti dihei»
Zur Auswahl stehen drei unterschiedliche Wohntypen: vier Gartenwohnungen, vier Etagenwohnungen – je mit 4.5 Zimmern – und vier Attikawohnungen mit 3.5 Zimmern. So findet sich «i de Breiti» für jede Lebenssituation und jede Vorliebe das ideale Zuhause. Die praktisch identischen Grundrisse pro Wohntyp lassen sich einfach möblieren und nutzen den Raum geschickt. Vom Entrée aus verzweigen sie sich in den privaten Bereich mit den bis zu 17 m² grossen Zimmern und in die ausgedehnte Wohn-Ess-Landschaft mit offener Küche von herrlichen 40 m². Hier tickt die Uhr eine Spur langsamer. Entlang der Oberackerstrasse herrscht wenig Verkehr, praktisch vor der Haustür breiten sich die Felder aus.
Es ist der perfekte Ausgangspunkt für Spaziergänge, fürs Joggen, Biken und Wandern. Doch es kann auch schnell gehen, nämlich in die Stadt, für den Einkauf, für die Arbeit, fürs Vergnügen. Das Wohnvergnügen selbst – es ist definitiv hier zu Hause.
Der Wohnort
«i de Nächi»
Breite ist ein kleiner Ortsteil der Gemeinde Nürensdorf mit wenigen hundert Einwohnerinnen und Einwohnern. Auf rund 580 m ü. M. gelegen, geniessen Sie hier oben prächtige Ausblicke bis in die Alpen und erfreulich viele nebelarme Tage im Vergleich zum übrigen Zürcher Unterland.
Kindergarten, Primarschule und Sekundarschule befinden sich im 4 Fahrminuten entfernten Nürensdorf. Kinder bis zur 3. Primarklasse fährt ein Schulbusteam zu Hort und Schule. Nürensdorf bietet eine kleine, feine Auswahl von Ladengeschäften inklusive Migros und Volg. Das intakte Dorf eben ist geprägt von herzlichen Menschen und Dutzenden Vereinen, die vom Fussballclub bis zum Theaterverein zum Mitmachen einladen.
Für umfangreichere Einkäufe bietet sich das 4 Kilometer nahe Bassersdorf an. Die grossen Verkehrsachsen führen an Nürensdorf vorbei. So bedeutet «i de Breiti» zu wohnen auch, besonders ruhig zu wohnen. Dennoch sind die Zentren nahe: Mit dem Auto sind es 20 Minuten nach Zürich und gerade mal 10 nach Winterthur. Bus und Zug fahren in 44 Minuten nach Zürich HB, die Busfahrt nach Winterthur dauert 20 Minuten.
Breite Nürensdorf
«i de Idylle»
This content requires HTML5 with CSS3 3D Transforms or WebGL.
Die Situation
«i de Sunne»
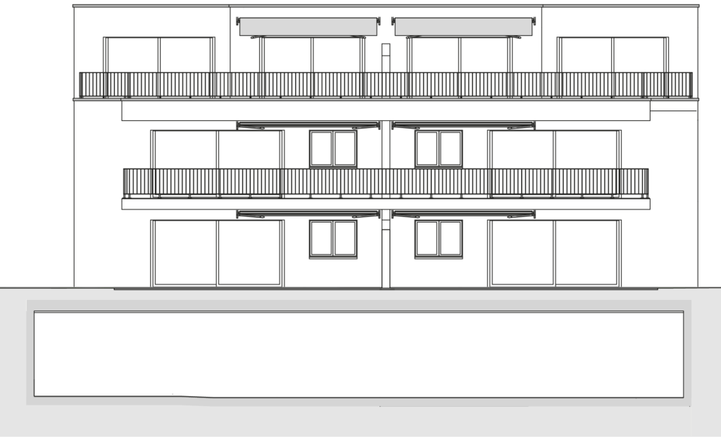
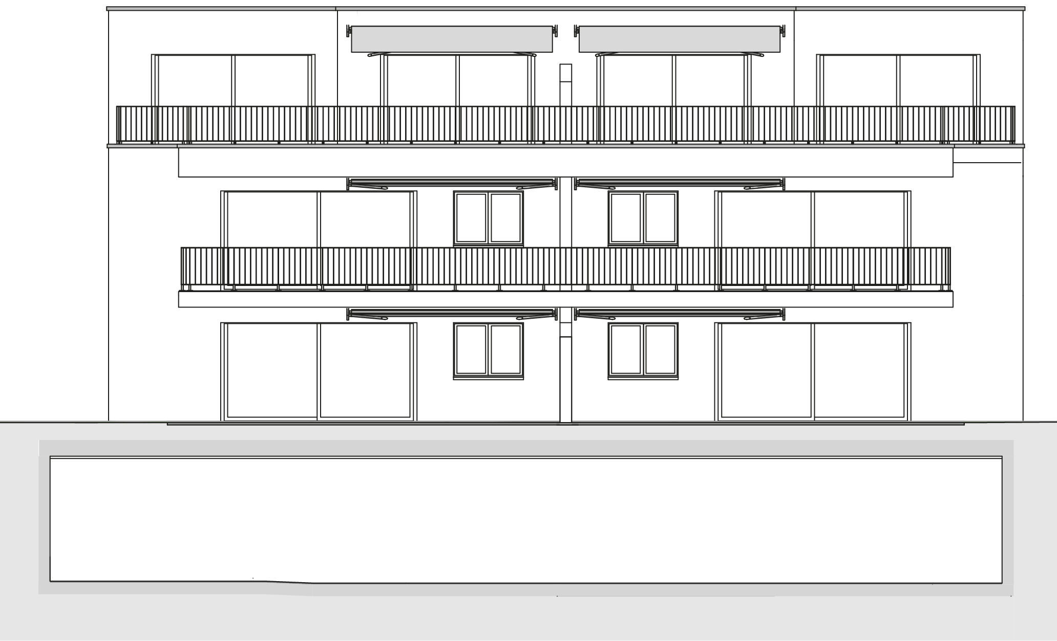
Die vier Erdgeschosswohnungen begeistern mit eigenem Garten mit Sitzplatz von 196 bis über 224 m² Grösse. Im Obergeschoss führt vom Wohnraum jeder Wohnung eine breite Glasfront auf einen zimmergrossen Balkon. Die Attikawohnungen bieten zwei Aussenräume: eine grosse Südterrasse und eine Terrasse mit Zugang vom 17 m² grossen Hauptschlafzimmer.
Die Spiel- und Ruhefläche bildet den einladenden Rahmen für Begegnungen oder sicheres Kinderspiel. Vom Grundstück öffnet sich auf zwei Seiten die Aussicht ins freie Feld mit nahen Höfen und den Wald in der Ferne.
Die Wohnungen
«i de Komfortzone»
Auf jedem Wohngeschoss sind je zwei praktisch identische Wohnungen angeordnet. So sehr sie sich gleichen, so sehr punktet jede Wohnung durch eigene Vorzüge. Allen gemeinsam sind der fast quadratische Grundriss, Fenster auf drei Seiten und der hohe Wohnkomfort.
Im Erdgeschoss gehört der weitläufige Garten zu den Glanzlichtern der Wohnung, im Obergeschoss des Südhauses A ist es der Balkon, der sich ins Grüne öffnet. Im Haus B wiederum entsteht Geborgenheit durch den hof artigen grünen Zwischenraum. Im Attikageschoss öffnet sich der Blick weit in die Ferne.
Von der Tiefgarage führt der Lift schwellenlos auf jede Etage, direkt vor die eigene Wohnungstür. Den hohen Wohnkomfort prägen zwei Badezimmer mit bodenebener Dusche und WC sowie die ausgedehnte Wohn- Ess-Landschaft mit offener Küche und Koch-Halbinsel. Die Budgets für die Ausstattung nach eigenem Gusto mit Materialien in hochwertigem Standard sind gut bemessen. Parkettboden, Abdeckungen aus Natur- oder Kunststein, Platten aus Feinsteinzeug im Bad. Im Rahmen des Baufortschritts bestimmen Sie die Wahl von Belägen, Geräten, Abdeckungen und Keramiken mit. Im Untergeschoss ist jeder Wohnung ein eigener Waschturm und Keller zugeordnet.














m²
m²
m²
CHF
Hinweis:
Autoeinstellplätze ab CHF 45’000.00
Kontakt
Wir sind für Sie da
Beratung & Verkauf
Architekt
Altorfer Architekten
Zentralstrasse 26
8604 Volketswil

